Preview only — see all hotel photos
See all 43 photos
Mostra hotel sulla mappa
Cailhabas
Situata a 3 km dalle Plateau Sanchese, la Villa Cailhabas Lescun invita gli ospiti a esplorare le varie attrazioni turistiche della zona.
Il centro di Lescun dista 1 km da questa villa con 1 camera da letto e le Cirque de Lescun è situato a 10 minuti in auto. L'Eglise Sainte-Eulalie si trova nelle immediate vicinanze di questa casa vacanze, mentre Barèges dista 57 km.
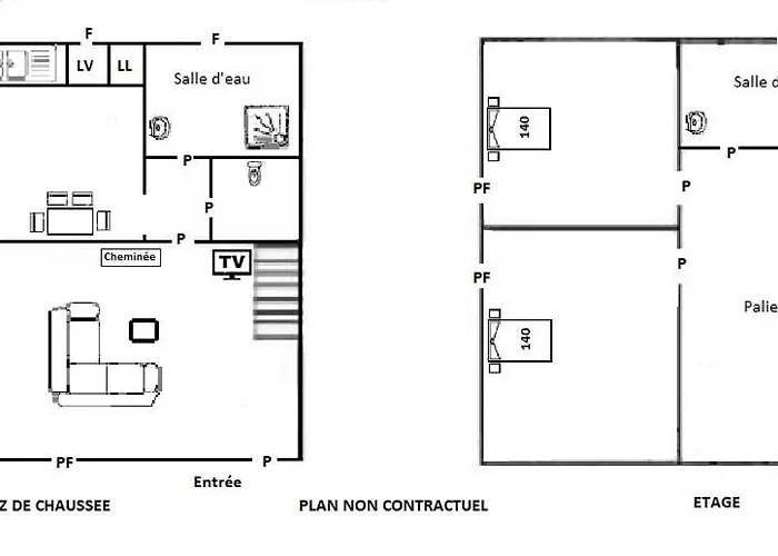
La Villa Cailhabas dispone di un bagno con un bagno con WC separato, una doccia e una lavatrice.
I pasti possono essere preparati nella cucina completamente attrezzata dotata di una lavastoviglie, un frigo e un forno. L'aeroporto di Pau-Pyrénées, il più vicino, dista 80 km da questo luogo.
Servizi
Top Servizi
- Wi-Fi
- Animali non ammessi
Servizi
- Struttura non fumatori
- Wi-Fi
- Parcheggio
- Animali non ammessi
- Terrazza
Politica
Mappa
Attrazioni locali
Aeroporti
- Aeroporto di Pau-Pyrénées (77 km)
Recensioni
100% Recensioni Verificate